Ke krbovým kamnům nebo krbové vložce lidé často přistupují jako k běžnému spotřebiči, jakým je například televize, lednice nebo pračka. Zajímá je především vzhled samotných kamen nebo krbu a to, jak si vychutnají pohled na hořící oheň. Díky tomu však mnohdy opomíjejí fakt, že primární funkcí topeniště je vytváření tepla.
S tímto přístupem se proto obvykle zapomíná na výpočet potřebného výkonu a vznikají tím nemilé potíže, které mohou zbytečně komplikovat bydlení a užívání domácnosti.
Co se nejčastěji děje při chybném výpočtu?
Výsledkem chybného výpočtu potřebného pro výběr krbových kamen má za následek dva důležité, chybové stavy:
1. Krbová kamna mají nadměrný výkon
- Krbová kamna dodávají do místností více tepla, než je tepelná potřeba místnosti nebo objektu.
- Místnost se přetápí a je nutné vyrobené teplo vyvětrat. Následkem je neekonomické hospodaření s teplem.
- Při přetápění místnosti se často zavírá přívod vzduchu kamen (snížení jejich výkonu pod funkční úroveň) a kamna začínají dehtovat.
- Dehtování způsobuje černé sklo, černé šamoty a zápach z usazování dehtu v komínovém tělese.
Při dlouhodobém používání kamen v nízkém výkonu dochází k nadměrnému zadehtování komínového tělesa, v jehož důsledku může dojít k jeho vyhoření a tím pádem i k trvalému poškození.
2. Krbová kamna nemají dostatečný výkon
- Krbová kamna nejsou schopna svým výkonem vytopit potřebný prostor.
- V místnosti je stále zima a nevytváří se příjemné pocitové teplo.
- Za účelem zvýšení výkonu kamen se přidává více paliva než je předepsáno.
- Přívod vzduchu se otevírá do maxima a zvyšuje se výkon krbových kamen.
Moderní spotřebiče jsou výrobci konstruovány na požadované rozpětí výkonu a emisí. Pokud kamna nejsou provozovány v předepsaném rozpětí výkonu a tím pádem se přetápí, může dojít k trvalému poškození spotřebiče.
Optimální hoření – nominální výkon krbových kamen
Výrobce krbových kamen nebo krbové vložky má povinnost vždy uvádět nominální výkon. Tato hodnota je následně zapsána v energetickém šťítku (zde např. uváděn výkon 8 kW). Nominální výkon je optimální výkon, který spotřebič vytváří při správné dávce paliva.
Jedná se o stav, který je ideální pro hoření – kamna či vložka nedehtují (není snížen jejich výkon), ani nejedou na své maximum (nevytváří se vysoké teploty). Topeniště je tedy schopno požadovaný prostor řádně vytopit a následně udržovat teplotu kolem 21 °C.
Hodnota nominálního výkonu je přesně ta hodnota, kterou budete porovnávat s vypočítaným potřebným výkonem. Obvykle se pohybuje na 60-70 % maximálního výkonu topeniště.
Jak vypočítat potřebný výkon kamen
Když jsme si nyní vysvětlili, s čím budeme námi vypočítaný výkon porovnávat u krbových kamen (nebo jiném spotřebiči), můžeme se podívat na orientační výpočet.
Pro získání přesné ztráty tepla místnosti nebo objektu je nutné vypracovat energetický štítek objektu. Orientační hodnoty pro předběžný výpočet jsme pro vás připravili v bodě č. 3.
Co tedy potřebujeme znát?
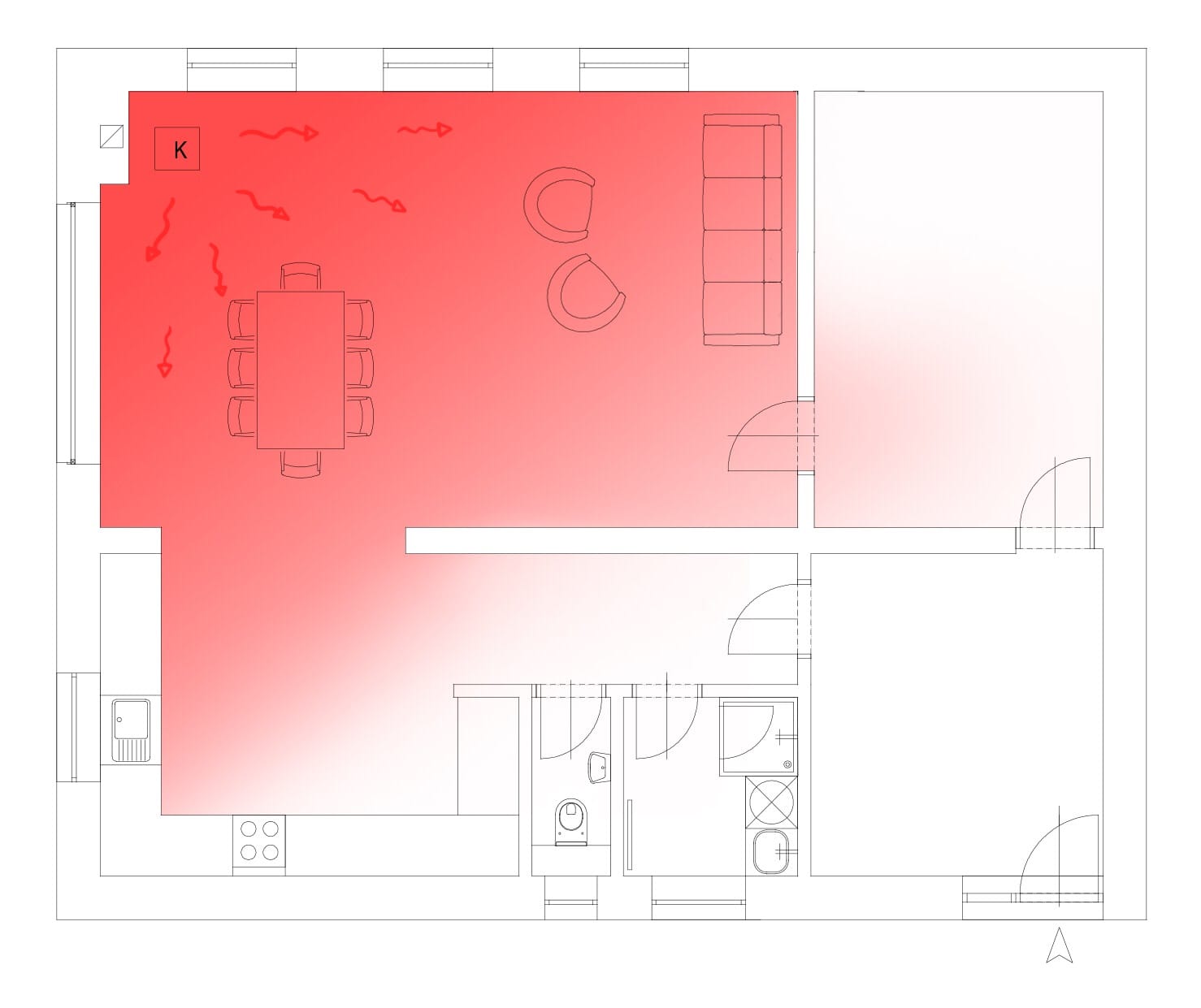
1. Velikost vytápěného prostoru
Horkovzdušná krbová kamna jsou vždy pouze lokálním zdrojem tepla. Nelze s nimi tedy vytopit celý dům nebo chatu. Je proto potřeba myslet na jejich umístění a na to, kam všude se teplo může z kamen dále šířit (místnost vedle, část chodby nebo vůbec nikam).
Pro samotný výpočet je potřeba znát m2 plochy, kterou budeme chtít vytápět. Představme si, že budeme vytápět chalupu o následující ploše:
- 60 m2 – hlavní místnost, kde jsou umístěny kamna.
- 6 m2 – chodba, která je blízko kamen a teplo se může šířit dále.
- 10 m2 – vedlejší místnost, kam pomocí dveří teplo odejde, ale už nebude schopno ji vytopit celou.
Pozor na případy, kdy teplo může uniknout např. po schodech do horního patra. Snadno tak může nastat situace, že horní patro bude přetopené, zatímco spodní část bude stále chladná. I na toto je tedy potřeba myslet a brát v úvahu možnost schody uzavřít a udržet teplo ve spodním patře.
2. Výška stropu
V jednotlivých místnostech je nutné změřit výšku stropu. Tu budeme následně pomocí jednoduchého vzorce násobit plochou. Dejme tomu, že všechny místnosti mají výšku stropu 2,5 m.
Výpočet bude: (60 + 6 + 10) * 2,5 = 190 m3
Pomocí krbových kamen budeme muset ohřát vzduch o objemu 190 m3.
3. Orientační ztráta tepla budovy
Zde bychom potřebovali opravdu přesný výpočet odborníkem. Pro naše zjednodušení si ale stanovíme tři základní kategorie objektu:
- Moderní pasivní dům – ztráta tepla 20 W na 1 m3
- Nízkoenergetická stavba (rekonstrukce nebo novostavba) – ztráta tepla 30 W na 1 m3
- Stará budova bez zateplení a prvků izolace – ztráta tepla 50 W na 1 m3
Důležité – jedná se pouze o orientační odhad. Přesná hodnota bohužel nelze určit takto jednoduše, ale pro orientační výpočet ztráty tepla a ukázku vzorce výpočtu nám to pro tuto chvíli postačí.
Dejme tedy tomu, že máme dům po rekonstrukci se zateplením a sadou plastových oken – ztráta tepla 30 W na 1 m3:
Výpočet bude: 190 m3 * 30W = 5 700 W => 5700 / 1000 = 5,7 kW
Orientační výpočet potřebného výkonu krbových kamen nebo krbové vložky je 5,7 kW.
V tomto případě, máme potřebný nominální výkon spotřebiče 5,7 kW. Pro námi ukázkový objekt budeme hledat krbová kamna nebo krbovou vložku právě s tímto výkonem.
Ještě jednou upozorňujeme, že se jedná o orientační výpočet a výslednou hodnotu proto nelze brát jako exaktní výpočet vztahující se na konkrétní obydlí. Pro představu potřebného výkonu vám však bohatě postačí.

